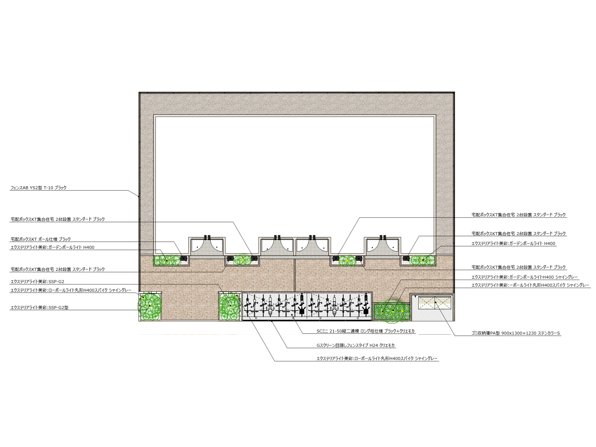
【デザイン説明】
カーポートSCミニを採用し、集合住宅の駐輪スペースに住まいとの調和と快適性をプラスしました。
視線を遮るH24のGスクリーン目隠しフェンスでプライバシーに配慮し、雑多な印象を軽減します。
木目調の素材が温かみを演出し、宅配ボックスや大型のゴミ収納庫も設置して、居住者の暮らしやすさを高めます。
【使用商品】
カーポートSCミニ 21-50縦二連棟 ロング柱仕様 ブラック+クリエモカ
Gスクリーン目隠しフェンスタイプ H24 クリエモカ
フェンスAB YS2型 T-10 ブラック
宅配ボックスKT集合住宅 2台設置 スタンダード ブラック
宅配ボックスKT ポール仕様 ブラック
ゴミ収納庫PA型 900×1300+1230 ステンカラーS
エクステリアライト美彩
SSP-G2 シャイングレー
ローポールライト丸形H400スパイク シャイングレー
ガーデンポールライトH400 シャイングレー