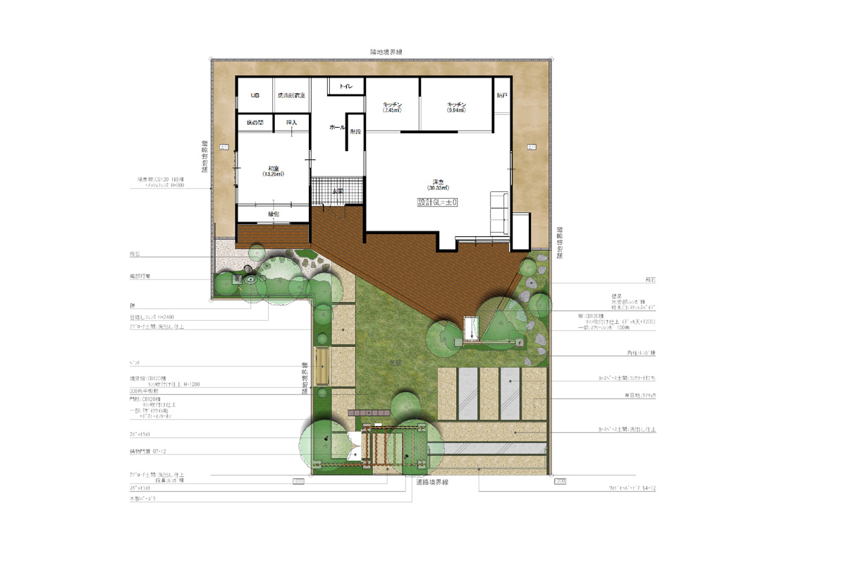
重厚感のある建物とのバランスを考え、ボリュームがありながらも重くなりすぎないエクステリアとしました。門周りは角柱を用いてしっかりした印象に。ガレージとデッキの間のウォールは道路からの視線を遮り、落ち着けるテラスを作ってくれます。デッキ・芝庭・ガレージは出来るだけつながりを持たせ、パーゴラから始まる、広い空間を演出しています。