詳細検索閉じる
1739 PLANS
2026.03.26 更新
テーマ・スタイル
施工場所
メーカー・団体名で探す
価格
敷地形状・条件
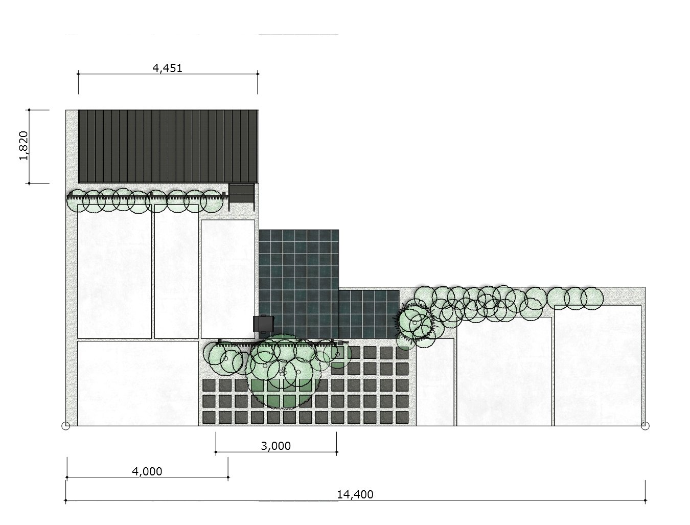
ホームプラン黒木調のフェンスとサインポールを組み合わせた和モダンデザイン

黒木調のフェンスとサインポールを組み合わせた和モダンデザイン

公開日 : 2025.11.12

使用可能RIKCAD : RIKCAD11~12

※ドラッグ&ドロップでCADに取り込めない場合は、ファイルをご自分のPCに保存してからご使用ください。 ダウンロード方法はこちら

SERIES 同じシリーズのデザイン