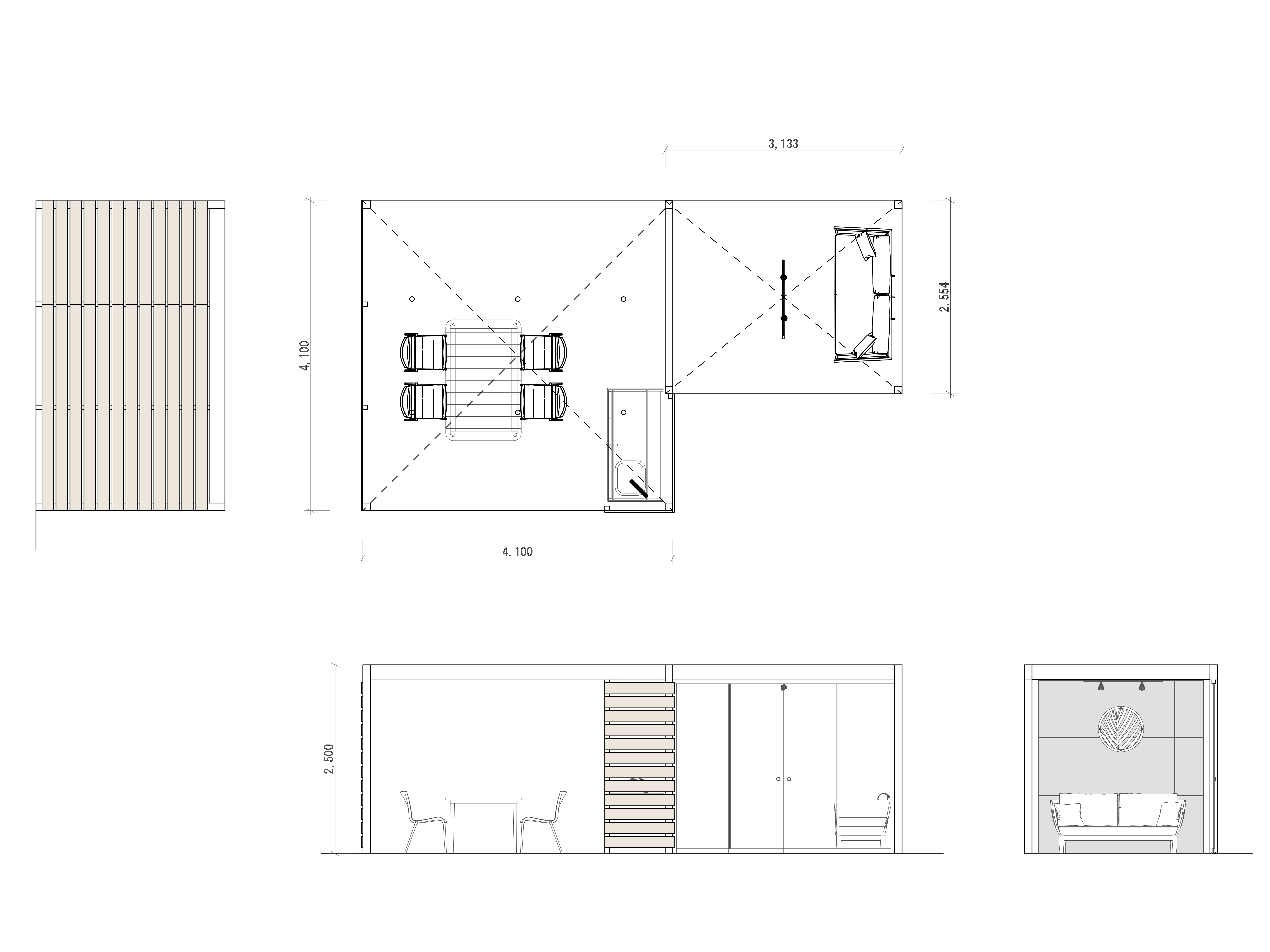
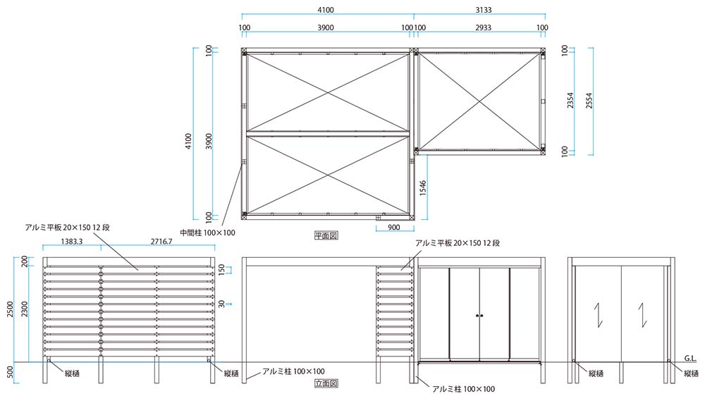
【コンセプト】
オールグラスポーチⅡとホームヤードルーフⅡを繋げた5thROOMです。
シンプルなカラーの中、ジャラの平板がリゾート感を引き立てます。
【使用商品】
- オールグラスポーチⅡスライドシステム(マットホワイト)
- オールグラスポーチⅡスライドシステム内天井(アクティオーク)
- ホームヤードルーフシステム ホームヤードルーフⅡ(マットホワイト)
- ホームヤードルーフシステム内天井(アクティオーク)
- エバーアートボード(マットライトグレー)
- エバーアートウッド アルミ平板 20×150(ジャラ)
- デザインパネルⅡ バームラウンド(シャイン)
- ダウンライト3型(グレイッシュゴールド)
- LEDIUS ローボルトレール スポットライト狭角
- コア ダイニングテーブル160(ピエニュクラシック)
- コア チェアー830(ピエニュクラシック)
- アートボード ガーデンカウンターシンク(アメリカンウォールナット)
【パッケージプラン】
サイト:https://pac.takasho.jp/portfolio/agp7
見積り:613058-253
※仕様、デザイン等を予告なく変更することがありますのでご了承ください。
※掲載のプランはイメージになります。ご使用の際はお近くの弊社積算課へお問い合わせの上、必ずお見積もりをお願いいたします。積算課お問い合わせ先はこちら