【デザイン説明】 ※店舗・商業施設|実用プラン レストラン リゾートボタニカル/ 店舗設計

温かな南国を想起させる、開放感あふれるリゾートボタニカルなレストランです。

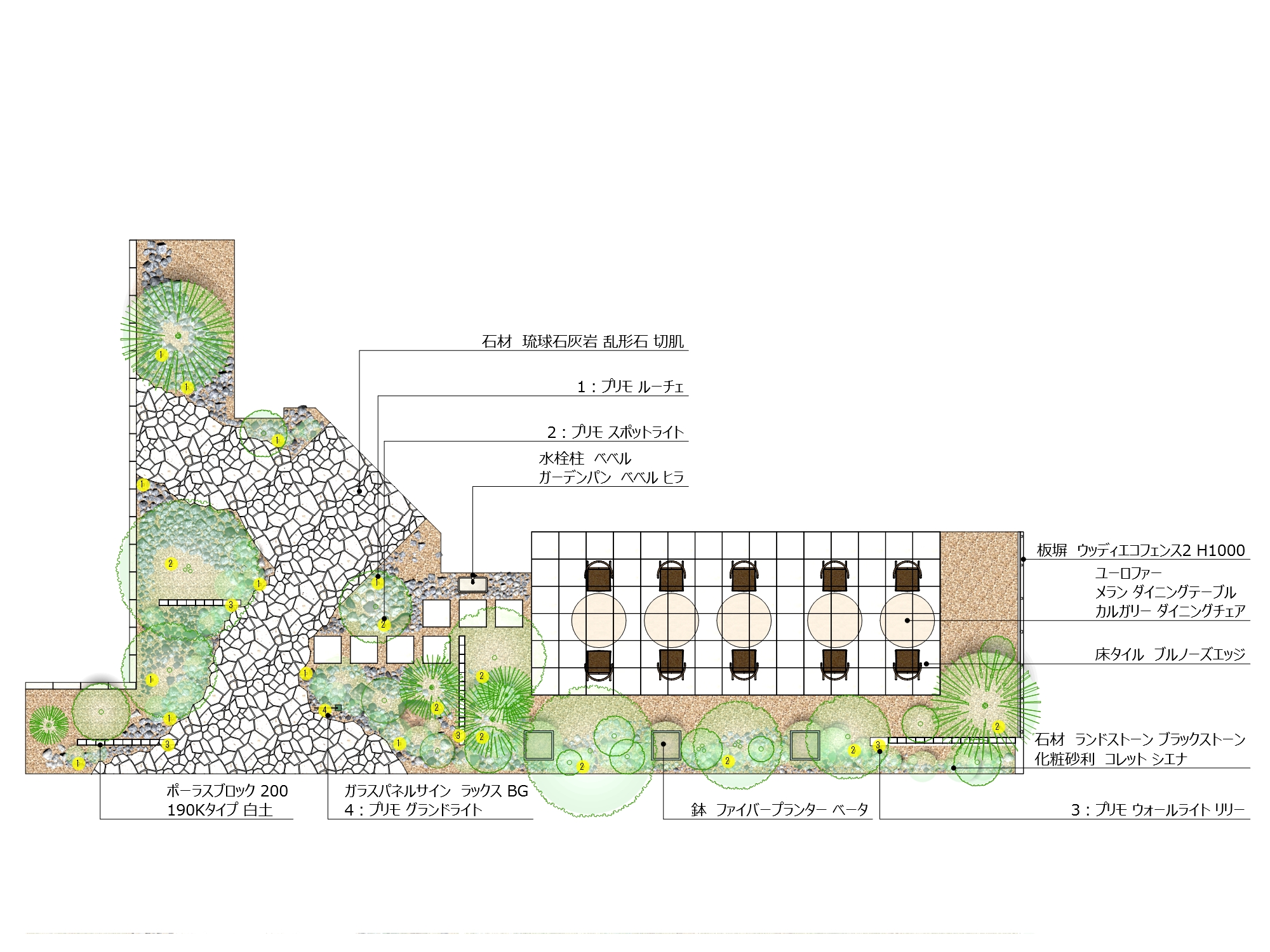
エントランスには、沖縄を代表する「琉球石灰岩」や、光と風を通すスクリーンブロック「ポーラスブロッ
ク200」を採用。柱サボテン、フェニックス・ロベレニー、ココスヤシ、ソテツといった南国植物をシンボリックに

配置し、足を踏み入れた瞬間に非日常へと誘う空間を演出しました。
オープンテラスには、屋外でも安心して使えるガーデンファニチャー「ユーロファー」を設え、背の高い樹木と

プランターを交互にレイアウト。外部からの視線を適度に遮りながら、自然を五感で楽しむ寛ぎの場に仕上げています。

夜間は12V 照明「プリモシリーズ」の効果的なライティングにより、リゾートホテルのようなドラマチックな異国情緒を醸し出します。

【使用商品】

ラックスBG(E26_P.212/ ショップサイン)
ポーラスブロック200(M20_P.292)
プリモ ウォールライト リリー(E26_P.522)
プリモ スポットライト(E26_P.508)
プリモ ルーチェ(E26_P.512)
ユーロファー メラン ダイニングテーブル(G19_P.202)
ユーロファー カルガリー ダイニングチェア(G19_P.203)
ファイバープランターベータ(G19_P.291)
琉球石灰岩(M20_P.120/ 敷石)
ブルノーズエッジ(M20_P.270/ 床タイル)
ベベル(G19_P.102/ 水栓柱・G19_P.152/ ガーデンパン)

▼オンリーワンクラブ最新カタログ

https://www.onlyoneclub.jp/catalog/

※表示金額には消費税・工事費・配送費は含まれていません。また、地域により商品価格が異なる場合があります。予めご了承ください。

© UNIMAT RIK inc.