詳細検索閉じる
1830 PLANS
2026.02.02 更新
テーマ・スタイル
施工場所
メーカー・団体名で探す
価格
敷地形状・条件
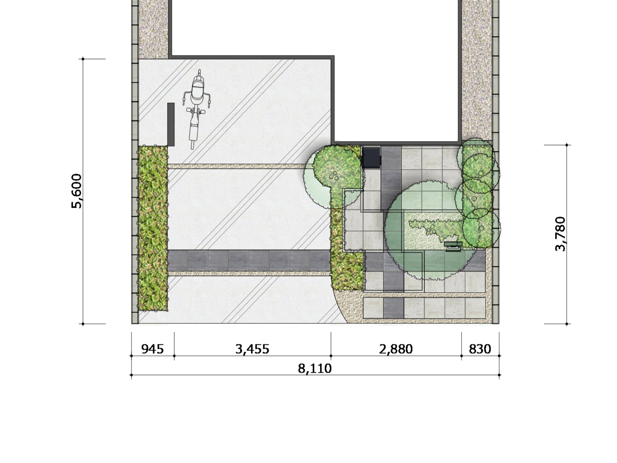
ホームプラン透明感のある上品な門まわりコーディネート

透明感のある上品な門まわりコーディネート