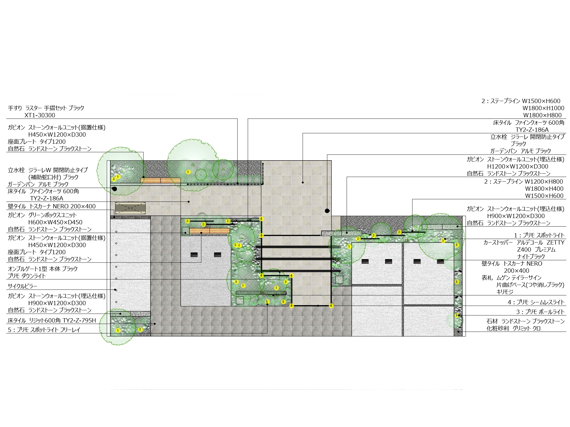
【デザイン説明】 ※集合住宅|実用プラン

特注サイズの「オンブルゲート」を三連棟で配し、ダイナミックなフレーム構成が際立つ集合住宅のエントランス。

門塀にはクォーツサイトの質感を再現したイタリア産タイル「トスカーナ」を纏わせ、重厚な佇まいを追求しました。

完全オーダーメイドの「ムゲンテイラーサイン」が、そこに唯一無二の品格を添えます。
夜を彩るのは「プリモ シームレスライト」の柔らかな光。フローティングステップを鮮やかに浮かび上がらせ、訪れる人をホテル
ライクな空間へと誘います。さらに、壁面や植栽を美しく照らす12V 照明「プリモ シリーズ」や、LED 内蔵のフレームシステム
「ステープライン」によるライティングは、美観のみならず住まう人の安心感と防犯性を両立しています。サイズオーダーの自由な
デザインと豊かな緑が調和し、心安らぐ生活環境を形作ります。

【使用商品】

オンブルゲート1 型 特注対応(E26_P.54)
プリモダウンライト(E26_P.514)
プリモ スポットライト(E26_P.508)
プリモ ポールライト スクエアスリム(E26_P.500)
プリモ シームレスライト(E26_P.515)
ガビオン ストーンウォールユニット(M20_P.40)
ガビオン グリーンボックスユニット(M20_P.44)
座面プレート(M20_P.42)
スノーブルーストーン(M20_P.199/ ゴロタ石)
ファインクォーツ600 角(M20_P.237/ 床タイル)
リジット600 角(M20_P.272/ 床タイル)
トスカーナ(M20_P.224/ 壁タイル)
アルデコールZ400 プレミアム(M20_P.68/ 車止め)

ムゲンテイラーサイン(E26_P.584)

ステープライン(E26_P.220)

ラスター( E26_P.262/ 手摺)

 

▼オンリーワンクラブ最新カタログ
https://www.onlyoneclub.jp/catalog/

 

※表示金額には消費税・工事費・配送費は含まれていません。また、地域により商品価格が異なる場合があります。予めご了承ください。

© UNIMAT RIK inc.